大到电动车、火箭,小到酒水、短裤,埃隆·马斯克似乎拥有无穷的创意和超强的执行力,能够推出各式各样的产品,并且也总能成功。而目前,马斯克又将进军餐饮业,首次尝试“餐厅+充电站”的跨界组合。
财联社5月25日讯(编辑 刘蕊)大到电动车、火箭,小到酒水、短裤,埃隆·马斯克似乎拥有无穷的创意和超强的执行力,能够推出各式各样的产品,并且也总能成功。而目前,马斯克又将进军餐饮业,首次尝试“餐厅+充电站”的跨界组合。
早在四年前,马斯克曾首次在推特上提到过,想在洛杉矶的某个特斯拉充电站选址上开一家“老式的免下车、溜冰鞋和摇滚餐厅”,这在当时听起来似乎只是一句玩笑,但现在看来,马斯克是认真的,而且已经距离实现这一目标只有一步之遥。

5月19日,特斯拉向洛杉矶市政府提交了一份关于建立特斯拉餐厅的文件。文件显示,该餐厅将在好莱坞圣莫尼卡大街西街上开业,全天24小时营业。
据报道,这家餐厅空间面积9300平方英尺(约合864平方米),包括一个免下车电影院和一个带28个充电位的超级充电站。

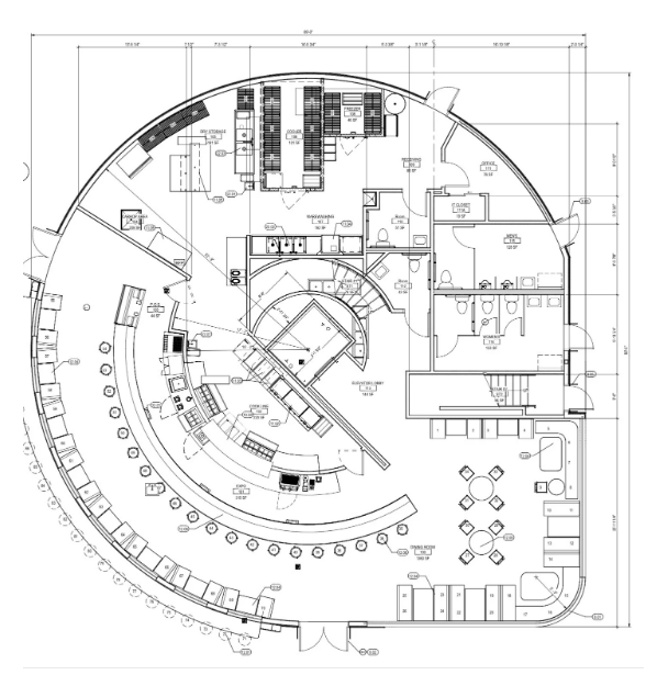
据报道,这间餐厅将采用未来主义设计。建筑平面图显示,这是一家两层的餐厅,室内和室外共有200多个座位。室内带吧台,而室外座椅可以直接看到两个高大的LED电影屏幕,食物也可直接送到客人的车上。

大约一年前,特斯拉就向美国专利和商标局提交了申请,注册了从自助服务到外卖等一系列餐厅概念的“T”标志商标。而今年2月马斯克还证实该餐厅可以采用狗狗币支付。
不过,尽管一家开设在好莱坞的特斯拉充电站餐厅的计划听起来很有吸引力,这家餐厅的开业时首先还必须得到洛杉矶市政府的批准。
关于具体开业日期或餐厅菜单内容,特斯拉还没有透露进一步的细节。
